杭州
关闭
C
成都
H
合肥
杭州
N
南京
S
深圳
苏州
上海
Z
重庆
首页
新房
问答
资讯
登录
/
注册
您的位置:
首页
>
新房
>
中海天府麓湾
>
户型详细
中海天府麓湾
在售
装修交付
关注楼盘
首页
楼盘动态
在售户型
用户问答
楼盘相册
楼栋信息
楼盘详情
楼盘点评
周边配套
全部(
0
)
3室(
4
)
4室(
3
)
←
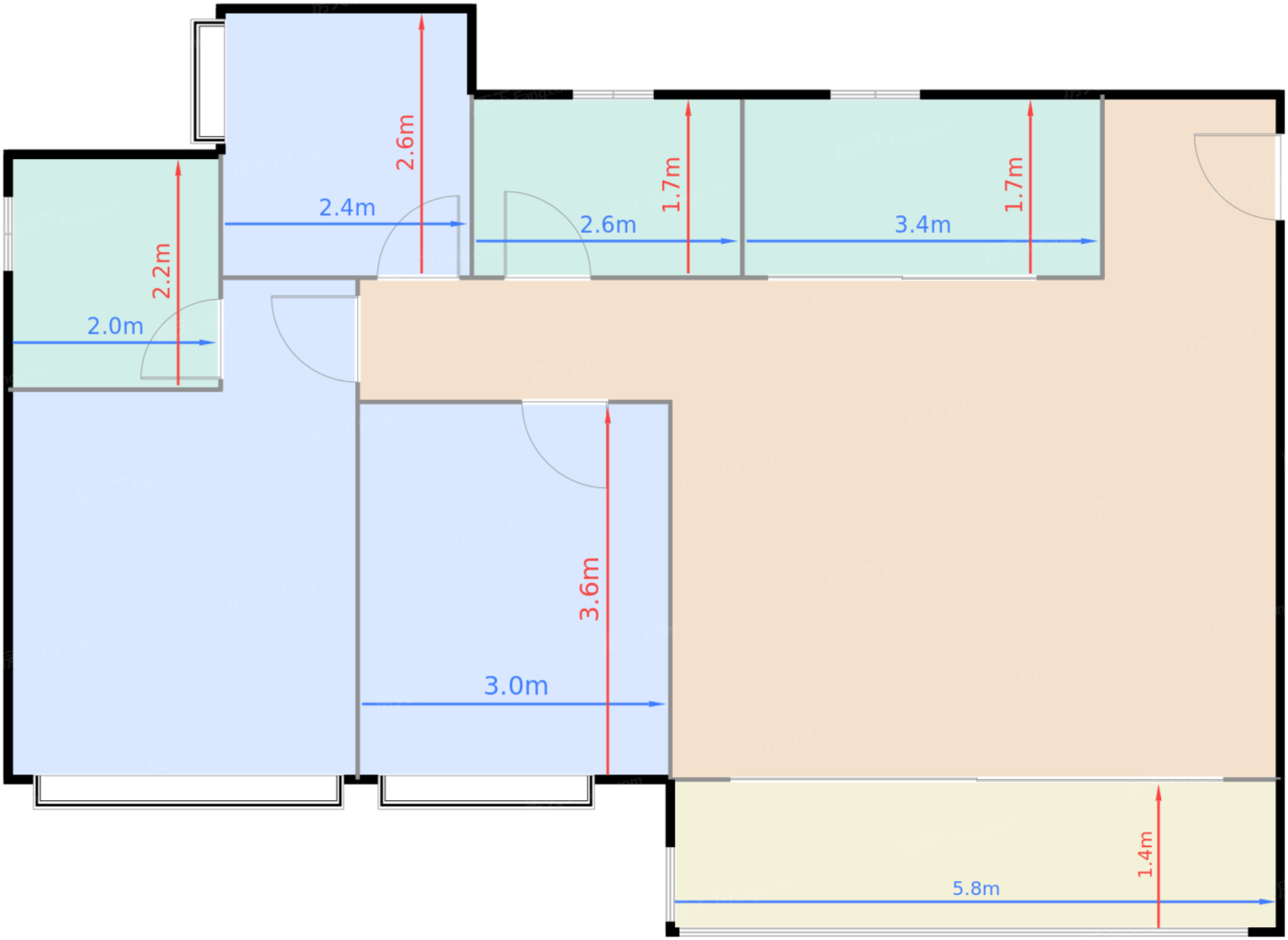
3室2厅2卫
95.00㎡
3室2厅2卫
95.00㎡
3室2厅2卫
100.00㎡
3室2厅2卫
100.00㎡
4室2厅2卫
122.00㎡
4室2厅2卫
132.00㎡
4室2厅2卫
132.00㎡
→
均价:
28000
元/㎡
售价:
280
万
朝向:
居室:
3室2厅1厨2卫
面积:
100.00㎡
购房热线